USED HOUSE
中古住宅
桃山台/東豊中町5丁目
中古戸建
- 【太陽光発電・蓄電池付き】
LDK18畳、水回り集約、使い方自由なワークスペースあり! - 小学校徒歩9分、中学校徒歩6分、公園・スーパー徒歩5分と、住環境充実!
この物件の特徴
- 豊中市
- 2沿線以上利用可
- LDK18畳以上
- 床暖房
- 全居室収納
- ウォークインクローゼット
- シューズインクローク
- システムキッチン
- パントリー
- トイレ2ヶ所
- ワイドバルコニー
- 太陽光発電システム
- 宅配ボックス
- スーパー 徒歩10分以内
- 総合病院 徒歩10分以内
- 小学校 徒歩10分以内
PLAN
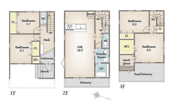
間取り図
- 開放感のある18畳LDK、同じフロアには洗面やお風呂など、水回りが集約しているので家事移動もラクラク。
パントリー収納やウォークインクローゼットなど、随所に収納も完備しているので物が増えても安心です。 - 4,690万円
- 間取り
- 2LDK+3S
- 土地面積
- 78.78㎡[公簿]
- 建物面積
- 113.40㎡
ACCESS
アクセス・周辺環境
- 現地案内図
周辺環境
-
教育施設
- 東豊中 ひだまり保育園
- 徒歩6分(450m)
-
教育施設
- 豊中市立東豊中小学校
- 徒歩9分(700m)
-
教育施設
- 豊中市立第十五中学校
- 徒歩6分(450m)
-
ショッピング施設
- スーパーフレスコ 熊野店
- 徒歩5分(400m)
-
ショッピング施設
- マルヤス東豊中店
- 徒歩12分(900m)
-
ショッピング施設
- スギ薬局 東豊中店
- 徒歩5分(350m)
-
ショッピング施設
- アザール桃山台
- 徒歩14分(1100m)
-
医療機関
- 豊中若葉会病院
- 徒歩5分(350m)
-
教育施設
- 豊中市立ゆたかこども園
- 徒歩3分(180m)
-
教育施設
- トレジャーキッズひがしとよなか保育園
- 徒歩3分(240m)
-
ショッピング施設
- サンディ 豊中泉丘店
- 徒歩5分(400m)
-
ショッピング施設
- フードショップ青葉 東豊中店
- 徒歩5分(400m)
-
ショッピング施設
- ローソン 東豊中町五丁目店
- 徒歩5分(350m)
-
金融機関
- 豊中熊野郵便局
- 徒歩5分(400m)
-
金融機関
- 池田泉州銀行 桃山台支店
- 徒歩14分(1100m)
-
公園・レジャー施設
- 東豊中5丁目遊園
- 徒歩1分(50m)
-
公園・レジャー施設
- 二ノ切池公園
- 徒歩5分(400m)
-
医療機関
- ふくながクリニック
- 徒歩3分(170m)
OUT LINE
物件概要
| 物件名 | 桃山台/東豊中町5丁目 |
|---|---|
| 所在地 | 豊中市東豊中町5丁目 |
| 交通 | 北大阪急行線「桃山台」駅へ徒歩16分(約1280m) 阪急宝塚線「豊中」駅へ自転車約12分(約2500m) |
| 価格 | 4,690万円 |
| 土地面積 | 78.78㎡[公簿] |
| 建物面積 | 113.40㎡ |
| 間取り | 2LDK+3S |
| 用途地域 | 第一種中高層住居専用地域 |
| 建ぺい率 | 60% |
| 容積率 | 200% |
| 敷地権利 | 所有権 |
| 地目 | 宅地 |
| 私道負担・道路 | 私道負担:なし 前面道路:東側公道約6.7m、接道間口約6.5m |
| 設備(電力・ガスなど) | 公営水道、下水道、ガス、電気 |
| 構造・工法 | 木造3階建 |
| 入居時期 | 相談(居住中) |
| 完成時期(築年月) | 2018年5月完成 |
| 取引態様 | 仲介 |
| その他概要・特記事項 | 売主の契約不適合責任免責 |
【情報更新日】2025-12-18
【次回更新予定日】2025-12-25
INQUIRY
お問い合わせ
開催中 EVENT










